Carreaux de sol en vinyle de quartz: caractéristiques de style du «quartz de vinyle»
Les carreaux de vinyle en quartz pour le sol font référence à des revêtements de PVC avancés, qui, en plus du chlorure de polyvinyle, comprennent du sable de quartz. Le dernier composant n'est pas si petit - jusqu'à 60-80%, tandis que le PVC et divers additifs - seulement 20%. En un mot, la tuile de vinyle en quartz est plus proche de l'origine du minéral de quartz que du PVC. Cela donne au carreau une résistance extraordinaire, une abrasion presque nulle, une sécurité incendie, une résistance à l'humidité. La présence de chlorure de polyvinyle dans la composition vous permet de simuler tous les matériaux, ainsi que leur texture. Les carreaux de vinyle en quartz peuvent être un double de bois, de granit, de marbre, d'ardoise, de céramique - n'importe quoi. Grâce à cela, vous pouvez incarner tous les fantasmes de conception sans investissement financier important.
La structure des carreaux de vinyle en quartz: qu'y a-t-il à l'intérieur?
La tuile de vinyle en quartz est en couches, sa conception est la suivante:
- 1ère couche (haut) - polyuréthane transparent. Si l'on rappelle que le composant principal des sols en vrac est également le polyuréthane, il devient clair que cette couche protège le carrelage des rayures, déformations, abrasion;
- 2e couche - film décoratif. Elle est responsable de la coloration et du motif du revêtement de sol;
- 3ème couche - le vinyle de quartz principal. Donne aux carreaux les propriétés de base: solidité, insonorisation, résistance à l'humidité;
- 4ème couche - renfort en fibre de verre. Attache la structure, rend la tuile insensible à la déformation;
- 5e couche (inférieure) - vinyle, bilan.
Si vous décidez que votre sol doit être en vinyle de quartz, ne vous précipitez pas pour appeler des finisseurs spécialisés. Ci-dessous, nous fournirons des instructions détaillées pour la pose, ce qui vous permettra de faire face à cette question vous-même.

Matériaux et outils de coiffage
Lors de la pose de carreaux de vinyle en quartz, les matériaux et outils suivants sont utilisés:
- composés de nivellement (mortiers de ciment, mastics, etc.), apprêts - pour préparer la surface du sol;
- ruban à mesurer carré, cordon enduit, crayon ou craie - pour le marquage;
- truelle crantée, colle acrylique - pour coller les carreaux (si le matériau est utilisé sans connexion de verrouillage);
- rouleau - pour niveler les éléments collés.
Pose de carreaux de vinyle de quartz
1. Nivellement et préparation de la surface
À la surface sur laquelle le carreau de vinyle en quartz est posé, des exigences spéciales sont imposées. Le sol doit être soigneusement nettoyé et nivelé, tous les défauts sont nivelés.
Pour sol en béton conseillé:
- enlever les ordures, enlever les traces de graisse, les peintures, les vernis, enlever la poussière;
- niveler la surface avec des mélanges de nivellement ou une chape de ciment;
- réparer les fissures, les copeaux, les nids-de-poule avec du mastic;
- appliquer un apprêt;
- vérifier l'humidité - elle ne doit pas dépasser 5%.
Pour les feuilles de contreplaqué, OSB ou GVL (une base en bois est recouverte de ces matériaux):
- rectifier les différences entre les feuilles pour niveler la surface;
- enlever les ordures, enlever la poussière;
- en présence de défauts (fissures, fissures) - mastic;
- vérifier l'humidité (jusqu'à 5% admissible).

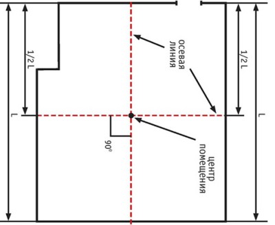
2. Marquage au sol
Sur la surface du sol, les axes sont décomposés. Pour ce faire, trouvez les centres de deux murs opposés et utilisez un cordon enduit pour les connecter en ligne. Le centre est marqué sur cet axe et une deuxième ligne est tracée à travers lui, à angle droit.À la suite du balisage, 4 rectangles identiques sont obtenus, par rapport auxquels la tuile sera posée.

3. Montage sur carreaux
Les carreaux de vinyle en quartz peuvent être montés au moyen de colle et de joints sans colle. Dans le premier cas, l'adhésion de la dalle au sol est assurée par dispersion ou colle de contact. Ce modèle d'installation est de loin le plus courant.
Un autre cas est un joint sans colle, il n'est possible qu'avec la dernière série de dalles PVC avec joints Click Lock. Grâce au système «à languette et rainure», les carreaux de vinyle en quartz avec une connexion verrouillée lors de l'installation sont connectés uniquement les uns aux autres, contournant ainsi le besoin d'adhérence au sol. Pour ce faire, il suffit d'insérer la rainure d'une tuile dans l'évidement longitudinal de l'autre et de les enclencher en place. En d'autres termes, la pose d'une telle tuile de vinyle en quartz s'effectue de la même manière qu'un stratifié.

Lors de l'utilisation de carreaux adhésifs ordinaires, tout d'abord, de la colle est appliquée sur la surface préparée avec des mouvements en forme d'éventail. Commencez par le secteur le plus éloigné de la porte. Après avoir posé les éléments, le secteur suivant est enduit, puis le suivant, etc. La colle pour le montage des carreaux de vinyle en quartz doit être appliquée uniformément avec une spatule de taux A1-A2. Dans ce cas, sa consommation sera optimale et sera de 0,25-0,35 kg / m2. Il est impossible de coller le carreau directement sur de la colle fraîche, car il n'a pas encore acquis les propriétés adhésives nécessaires. Ce n'est qu'après 8-10 minutes, quand il sèche un peu, que vous pouvez commencer l'installation.

Les carreaux de sol en vinyle de quartz sont disponibles sous forme de carreaux et de garnitures. Les planches doivent commencer à être posées le long du centre de l'axe et s'éloigner de vous, sur l'un des côtés, en se déplaçant le long des planches précédemment posées. La pose de carreaux carrés commence à partir du coin où les axes de marquage se croisent, strictement à l'intérieur du secteur le plus éloigné de l'entrée. L'installation des carreaux doit également se faire par moi-même. D'autres modèles de pose sont possibles, ils sont tous décrits dans les instructions pour les carreaux de vinyle en quartz. Après collage, chaque élément est roulé avec un rouleau du centre vers les bords pour une meilleure adhérence au sol.

Les carreaux et les bandes de vinyle de quartz doivent être posés étroitement les uns aux autres, sans espaces. Les joints de dilatation entre les murs, les tuyaux et autres objets fixes sont facultatifs.
Si nécessaire, l'élagage est effectué sur le vinyle de quartz avant, le long de la ligne dont la contre-dépouille est d'environ la moitié de l'épaisseur. Ensuite, le carreau est plié et une coupe finale est effectuée.

5. Préparation à l'opération
Dès que la tuile de vinyle en quartz est posée, il est nécessaire d'enlever toute colle qui pourrait rester sur la surface et presser hors des coutures. La colle se frotte facilement avec un chiffon doux trempé dans de l'alcool éthylique.
Vous pouvez marcher sur des carreaux de vinyle en quartz immédiatement après la pose. Il est autorisé à charger avec des meubles après 24 heures, lorsque la colle est complètement sèche. Le lavage des planchers, le nettoyage final doivent être effectués seulement 5 jours après l'installation.
Vidéo de mise en page
Afin de mieux comprendre la technologie de pose des carreaux de vinyle en quartz, regardez un court clip vidéo:




4 commentaires